【施工事例】~間取り・プラン概要~
こんにちは、USホームです🪄
本日は弊社でマイホームを新築されたお客様の
プランをご紹介させていただきます。
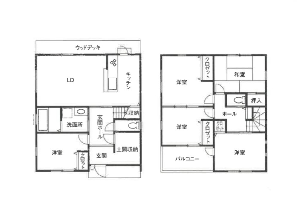
【岸和田市 I様邸】

本体価格:1,760万円(目安)
延床面積:119.97㎡(36.2坪)
工法:木造軸組

玄関横には大容量の土間収納を設けられました。
またご家族様は土間収納から出入りできるので
玄関が靴で散らかることなく、清潔感が溢れる玄関に。
大勢のご家族で住まれるため、
リビングは広々それぞれ個室も実現しました😌🪄
岸和田市I様邸の
施工事例はこちらから。
【施工事例 岸和田市I様邸】
他にも詳しい間取りや本体価格の載ったパンフレットを
ご準備していますので、お問い合わせフォームより
お気軽にお問い合わせください✨

2025年01月19日 09:29


